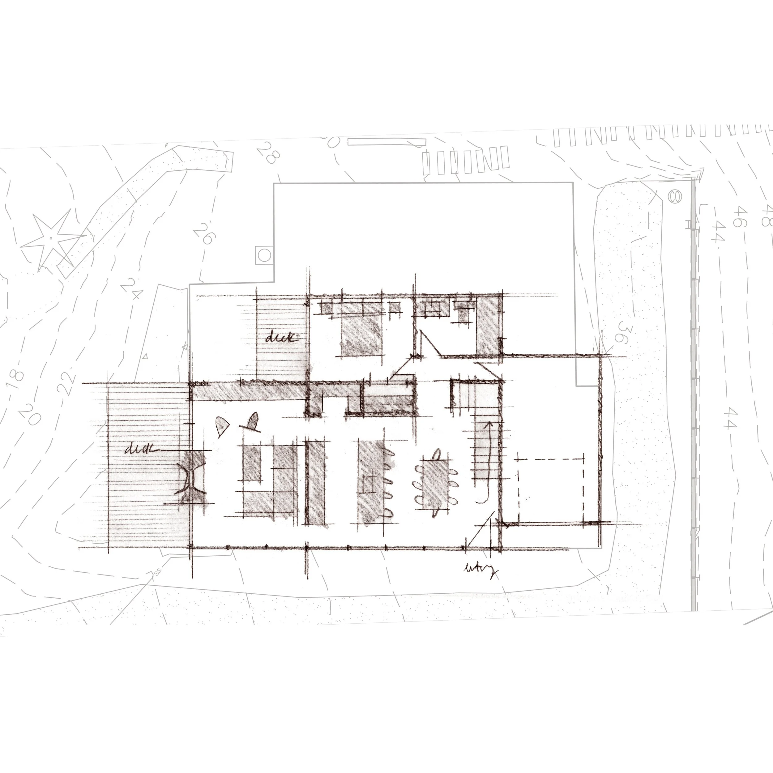
Braceland Residence

Mirroring the strength of the tide’s ebb & flow below with the mountain profile in the distance, this home was born out of simple, yet commanding features. The expansive shed roof and western cantilevered decks sharpen the form and are unified by a tall, central brick chimney that rises with the sloping site. Possessing a calmness in execution, the architecture keeps its ‘nose’ to the horizon like a ship out at sea.

Renderings: Notion Workshop

Next
Next

Atoma Restaurant