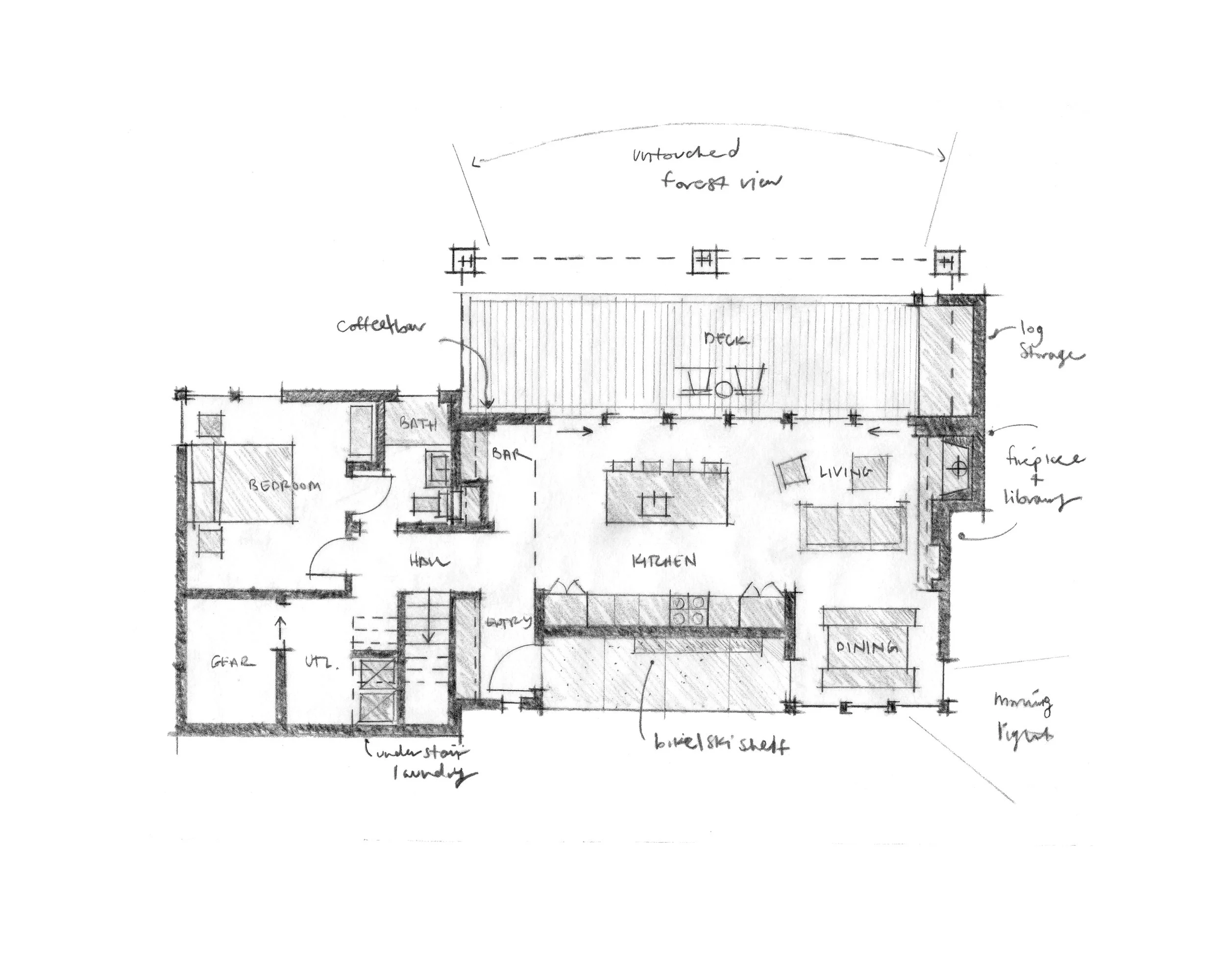
Lucky Jim Cabin

This home design emerged from two disparate ideas that both serve a purpose: to be a cabin, it should look like a cabin and the idea of a cabin can be refashioned. Two ideas that can be read as two distinct architectural forms, merging to create a cohesive whole with an efficient footprint and all the modern creature comforts. A cabin that draws on archetypal “cabin” cues to imbue the space with rich layers of meaning.

Renderings: Notion Workshop

Artwork in living room: Sharon Kingston

Previous
Previous

Atoma Restaurant

Next
Next

El Encanto Restaurant